新北市永和區大樓法拍

透明房訊,台北104法拍,台北法拍屋
法拍屋,法拍屋代標,法拍屋出售
最後更新:3小時內
房屋基本資料
案名 永和區永和路二段168號19樓【 樺福千金】店住大樓 案號 114松127047
地址 新北市永和區永和路二段168號19樓<19> 社區/大樓永和-樺福千金(樺福建設)
銷售狀態 待標中 售價
售6819萬
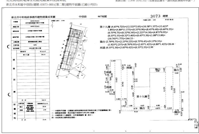
房屋類型法拍大樓 總登記坪數 137.62 坪
格局 屋齡 15年
每坪單價 49.55萬/坪 公設比
車位 含停車位編號33及34 座向
無障礙環境 法拍屋 本物件是法拍屋
拍次 : 第四拍
開標日期 : 115/5/26(二)
建物所在樓層 19樓/共19樓 管理費
管委會 中庭
電梯 未知 是否為凶宅
300公尺內嫌惡設施 面前道路
面寬 縱深
邊間 房屋銷售來源 不動產經紀人/專業仲介
房屋特色

▲拍賣公告:新北法院
▲拍賣標的物:新北市永和區永和路二段168號19樓<19>
▲【謄本資料】:總坪數137.62坪主建坪73.91坪,附屬坪9.51坪,停車坪20.30坪,公設坪33.90坪
▲【法院筆錄】:建物,本件拍定後點交。
▲【生活機能】:捷運頂溪站共構宅
▲【拍次說明】:
標售拍次(目前拍次底價):
第一拍底價:13312萬
第二拍底價:10651萬
第三拍底價:8522萬
第四拍底價:6819萬
拍賣日期:115/5/26(二)
▲台北∣新北∣桃園∣新竹
★Houseinfo:http://www.xn--ogt54mdnjqrqpix.tw/
▲【代標服務】
<過濾案件>追蹤拍賣日期...
<評估案件>投標全場陪同及標價最後建議...
<包辦交屋>與法院協商現住人交屋事項...
<代墊尾款>辦理銀行代墊及投標尾款手續...

※此案件為法拍屋無法看屋,實際狀況以法院筆錄為主。
詳細資訊了解請撥李小姐(02)8260-2416|0986-508652
財欣不動產管理顧份有限公司【統一編號】28306523
坪數說明
建物登記總坪數 137.62 土地登記總坪數
主建物坪數 73.91 停車位坪數 20.30
附屬建物坪數 9.51 公共設施坪數 33.90
增建坪數 地下室坪數
周邊環境
生活機能 鄰近交通
鄰近地標 公園綠地
鄰近學區 捷運站
房屋聯絡人資訊
聯絡人姓名 李小姐
(煩請告知聯絡人,您是在House-Info房屋網看到這則廣告,真摯感恩您的幫忙)
手機
0986-508-652
電子信箱
Skype通話 Line加入好友 Line加入好友
所屬公司名稱 財欣不動產管理顧問有限公司/統編2830 6053
公司電話 聯絡電話:02-82602416 / 0986508652 公司傳真
公司地址 新北市土城區金城路二段396號11樓/桃園市莊敬路一段346號4樓
網 址 http://www.精選法拍屋.tw
贊助商廣告
桃園廠房,桃園廠房出租,桃園廠房出售
新北法拍屋,新北市法拍屋,新北法院法拍屋
新北法拍大樓-1
新北法拍大樓-1
新北法拍大樓-2
新北法拍大樓-2
新北法拍大樓-3
新北法拍大樓-3
新北法拍大樓-4
新北法拍大樓-4
新北法拍大樓-5
新北法拍大樓-5
觀看地圖

新北市永和區大樓法拍-新北市永和區永和路二段168號19樓<19>-大樓

物件留言
請注意,如果您詢問的內容與物件不相符合或是廣告,經過審核,系統將會直接刪除您的發問內容
等待圖示
檢舉物件不實
等待圖示
黃金曝光
相似物件
www.house-info.idv.tw房屋網免責聲明:本系統為租用式開放房屋買賣網站建置平台,僅提供會員查詢-新北市永和區大樓法拍-等房屋資訊參考,並不涉入任何諮詢、交易。 物件(服務)聯絡人公佈的資訊、文字、照片、圖形、產權、廣告內容、或其他資料若有不實或違法情事,或與客戶聯絡交易過程中若衍生民事或刑事等法律問題,皆與本房屋網站無關,所有商標、文章、名稱等版權,皆歸屬原著作者所有! ●電話:07-7963288