新北大樓法拍

透明房訊,台北104法拍,台北法拍屋
法拍屋,法拍屋代標,法拍屋出售
最後更新:3小時內
房屋基本資料
案名 附車位【天闊】環河路40號6樓-1 案號 114快57796
地址 新北市新店區環河路40號6樓-1 社區/大樓新店-天闊(三盟建設)
銷售狀態 待標中 售價
售3676萬
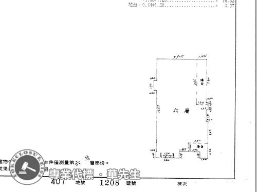
房屋類型法拍大樓 總登記坪數 51.86 坪
格局 屋齡 27年
每坪單價 70.88萬/坪 公設比
車位 機械車位 座向 朝東
無障礙環境 法拍屋 本物件是法拍屋
拍次 : 1
開標日期 : 115/5/11
建物所在樓層 6/34 管理費
管委會 中庭
電梯 是否為凶宅
300公尺內嫌惡設施 面前道路
面寬 縱深
邊間 房屋銷售來源 不動產經紀人/專業仲介
房屋特色
貸款才是決勝點,提供預審,保證核貸
擔任『台灣不動產拍賣協會』監事

◆己經查封,無法看室內◆
◆門牌:環河路40號6樓-1
◆主建物:31.59坪
◆附屬:5.20坪
◆公設:10.46坪
◆車位:4.61坪
【1車║坡道機械║編號地下四層568號】
◆土地:3.58坪
◆土地現值:【第四種住宅區■115年公告現值:190000元/㎡】
◆房屋用途:鋼骨造/住家用
◆房屋樓層:所在6樓/總樓層34樓
◆房屋朝向:朝東

【案件特色】
◎車位:【1車║坡道機械║編號地下四層568號】
◎房屋特點:【天闊社區】、新店溪畔SRC鋼骨地標、社區樓下即是大潤發賣場、可從社區散步到新店捷運總站沿路欣賞碧潭美景
◎交通動線:近碧潭大橋旁,環河路、安康路一段,捷運新店站,由安坑交流道而下,沿快速道路可抵達,由新店站沿河堤走回家約5~7分鐘
◎生活機能:社區外面有24小時7-11,地下室就有便利的大潤發賣場,生活機能良好
◎鄰近學區:中正國小,五峰國中

【社區簡介】
◎建設公司:三盟建設
◎營造公司:源利營造
◎構造種類:SRC鋼骨
◎總戶數:962戶
◎公共設施:閱覽室、韻律教室、高爾夫練習場、游泳池、健身房、超大中庭花園

【法院筆錄】●點交情形→點交●
1‧本件拍賣標的1208建號建物位於新北市新店區環河路「天闊」住宅大樓社區內,系爭建物現由債務人與其家屬共同居住及兼做公司營運辦公使用,該建物經檢視無增建情形;另系爭建物配賦一坡道機械停車位,位於地下四層,編號568號,可由2個坡道入口進入,該停車位現由債務人自行占有使用。標的407-1地號土地位於新北市路燈定位編號126515號之西北方約25公尺處,即新店區力行路11巷57號白色建物後方褐色土牆後方之土地,其上無建物坐落。
2‧本件係拍賣建物所有權全部,拍定後點交;另依新北市政府工務局114年7月1日新北工建字第1141291766號函覆所示,標的407-1地號土地與前開1208建號建物坐落之基地(即標的407地號)同為88使字第831號使用執照(83建字第1197號建造執照)之建築基地。又標的407-1地號土地分割自標的407地號土地,依新北市新店地政事務所114年6月27日新北店地登字第1146109161號函覆,標的407-1地號土地於拍定後應與建物坐落之基地一併辦理移轉登記,故土地共有人無優先承買權,拍定後不點交,請投標人注意。《清償債務》

※流標打8折,概以執行公告為準
第一拍05/11底標價:3676萬
第二拍未定底標價:2941萬
第三拍未定底標價:2353萬

王牌經理人,十六年以上法拍經驗豐富
眼光最精準,代標多筆億元以上的案件
在地最深耕,資源豐富廣闊人脈執行力
協助自用者,找到理想實用的房屋圓夢
幫助投資人,創造物件最高投資報酬率
最專業團隊,讓您案件事半功倍又圓滿

【在地深耕,眼光精準,人脈廣闊】
■產權清楚、案件評估、排除瑕疵事故
■全程負責、快速交屋、拍後不被騷擾
■代墊利率6.3%、額度8成、手續費0.3%
■房貸利率2.85%、免排隊、立即撥款
■法拍屋代墊款、需要資金、歡迎找我

104法拍網|透明房訊|全國最大
◆規模最大◈歷史最久◆
全國七處分公司,300多位編制人員
成立於1986年,全國16家法院駐點
◆專業最強◈全國唯一◆
全國超過1800場授課專業講習
100坪倉庫,造冊拍賣遺留物
◆正派經營◈開立發票◆
營業員(99)登159091號
經紀人(96)年北市經證字01243號
一零四法拍網(股),統編28306523
◆愛心傳播◈每件捐款5000元◆
至「伊甸社會福利基金會」

能看屋的,網頁會註明。一般法拍屋查封之後無法入內參觀,可依據建物平面圖推斷室內格局是否方正,或參考樓上樓下鄰居房屋。(預約看屋留言,一律不回)
坪數說明
建物登記總坪數 土地登記總坪數 3.58
主建物坪數 31.59 停車位坪數 4.61
附屬建物坪數 5.2 公共設施坪數 10.46
增建坪數 地下室坪數
周邊環境
生活機能 鄰近交通
鄰近地標 公園綠地
鄰近學區 捷運站
房屋聯絡人資訊
聯絡人姓名 經理:華國峰 / 特助:李佩玟
(煩請告知聯絡人,您是在House-Info房屋網看到這則廣告,真摯感恩您的幫忙)
手機
0916-000-104
電子信箱
Skype通話 Line加入好友 Line加入好友
所屬公司名稱 透明房訊 ,104法拍網(股)
公司電話 (02)8262-5555 / (03)337-5555 公司傳真 買賣一下子、服務一輩子
公司地址 新北市土城區金城路二段396號11樓 / 桃園市桃園區莊敬路一段346號4樓
網 址 http://www.104法拍屋.tw
贊助商廣告
桃園廠房,桃園廠房出租,桃園廠房出售
新北法拍屋,新北市法拍屋,新北法院法拍屋
新店法拍大樓-1
新店法拍大樓-1
新店法拍大樓-2
新店法拍大樓-2
新店法拍大樓-3
新店法拍大樓-3
新店法拍大樓-4
新店法拍大樓-4
新店法拍大樓-5
新店法拍大樓-5
新店法拍大樓-6
新店法拍大樓-6
新店法拍大樓-7
新店法拍大樓-7
新店法拍大樓-8
新店法拍大樓-8
新店法拍大樓-9
新店法拍大樓-9
新店法拍大樓-10
新店法拍大樓-10
新店法拍大樓-11
新店法拍大樓-11
新店法拍大樓-12
新店法拍大樓-12
新店法拍大樓-13
新店法拍大樓-13
新店法拍大樓-14
新店法拍大樓-14
新店法拍大樓-15
新店法拍大樓-15
觀看地圖

新北大樓法拍-新北市新店區環河路40號6樓-1-大樓

物件留言
請注意,如果您詢問的內容與物件不相符合或是廣告,經過審核,系統將會直接刪除您的發問內容
等待圖示
檢舉物件不實
等待圖示
黃金曝光
相似物件
www.house-info.idv.tw房屋網免責聲明:本系統為租用式開放房屋買賣網站建置平台,僅提供會員查詢-新北大樓法拍-等房屋資訊參考,並不涉入任何諮詢、交易。 物件(服務)聯絡人公佈的資訊、文字、照片、圖形、產權、廣告內容、或其他資料若有不實或違法情事,或與客戶聯絡交易過程中若衍生民事或刑事等法律問題,皆與本房屋網站無關,所有商標、文章、名稱等版權,皆歸屬原著作者所有! ●電話:07-7963288