新北三重大樓法拍

法拍屋,法拍屋代標,法拍屋出售
最後更新:59分鐘內
房屋基本資料
案名 三重區中華路【 阿爾卑斯天廈】大樓 案號 113協198307
地址 新北市三重區中華路1號8樓<31> 社區/大樓三重-阿爾卑斯天廈
銷售狀態 待標中 售價
售1646萬3000元
房屋類型法拍大樓 總登記坪數 56.48 坪
格局 屋齡 30年
每坪單價 29.15萬/坪 公設比
車位 座向
無障礙環境 法拍屋 本物件是法拍屋
拍次 : 第三拍
開標日期 : 115/3/10(二)
建物所在樓層 8樓/共31樓 管理費
管委會 中庭
電梯 未知 是否為凶宅
300公尺內嫌惡設施 面前道路
面寬 縱深
邊間 房屋銷售來源 不動產經紀人/專業仲介
房屋特色

▲拍賣公告:新北法院
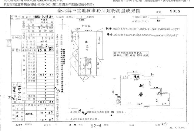
▲拍賣標的物:新北市三重區中華路1號8樓<31>
▲【謄本資料】:總坪數56.48坪主建坪32.61坪,附屬坪3.28坪,停車坪17.53坪,公設坪3.06坪
▲【法院筆錄】:拍定後點交
▲【生活機能】:
▲【拍次說明】:
標售拍次(目前拍次底價):
第一拍底價:2565萬
第二拍底價:
第三拍底價:
拍賣日期:115/3/10(二)
▲台北∣新北∣桃園∣新竹
★Houseinfo:http://www.xn--ogt54mdnjqrqpix.tw/
▲【代標服務】
<過濾案件>追蹤拍賣日期...
<評估案件>投標全場陪同及標價最後建議...
<包辦交屋>與法院協商現住人交屋事項...
<代墊尾款>辦理銀行代墊及投標尾款手續...

※此案件為法拍屋無法看屋,實際狀況以法院筆錄為主。詳細資訊了解請撥李小姐(02)8260-2416|0986-508652
財欣不動產管理顧份有限公司【統一編號】28306523
坪數說明
建物登記總坪數 56.48 土地登記總坪數
主建物坪數 32.61 停車位坪數 17.53
附屬建物坪數 3.28 公共設施坪數 3.06
增建坪數 地下室坪數
周邊環境
生活機能 鄰近交通
鄰近地標 距三重區公所步行約8分鐘,社區內有私立華納托兒所 公園綠地
鄰近學區 捷運站
房屋聯絡人資訊
聯絡人姓名 李小姐
(煩請告知聯絡人,您是在House-Info房屋網看到這則廣告,真摯感恩您的幫忙)
手機
0986-508-652
電子信箱
Skype通話 Line加入好友 Line加入好友
所屬公司名稱 財欣不動產管理顧問有限公司/統編2830 6053
公司電話 聯絡電話:02-82602416 / 0986508652 公司傳真
公司地址 新北市土城區金城路二段396號11樓/桃園市莊敬路一段346號4樓
網 址 http://www.精選法拍屋.tw
贊助商廣告
新北三重大樓法拍-1
新北三重大樓法拍-1
新北三重大樓法拍-2
新北三重大樓法拍-2
新北三重大樓法拍-3
新北三重大樓法拍-3
新北三重大樓法拍-4
新北三重大樓法拍-4
觀看地圖

新北三重大樓法拍-新北市三重區中華路1號8樓<31>-大樓

物件留言
請注意,如果您詢問的內容與物件不相符合或是廣告,經過審核,系統將會直接刪除您的發問內容
等待圖示
檢舉物件不實
等待圖示
黃金曝光
相似物件
www.house-info.idv.tw房屋網免責聲明:本系統為租用式開放房屋買賣網站建置平台,僅提供會員查詢-新北三重大樓法拍-等房屋資訊參考,並不涉入任何諮詢、交易。 物件(服務)聯絡人公佈的資訊、文字、照片、圖形、產權、廣告內容、或其他資料若有不實或違法情事,或與客戶聯絡交易過程中若衍生民事或刑事等法律問題,皆與本房屋網站無關,所有商標、文章、名稱等版權,皆歸屬原著作者所有! ●電話:07-7963288