安南區廠房

最後更新:3小時內
房屋基本資料
案名 台南市安南區~廠房~安南和順|乙工廠辦住合一 案號 32417
地址 台南市安南區開安三街
銷售狀態 帶看中 售價
售5320萬
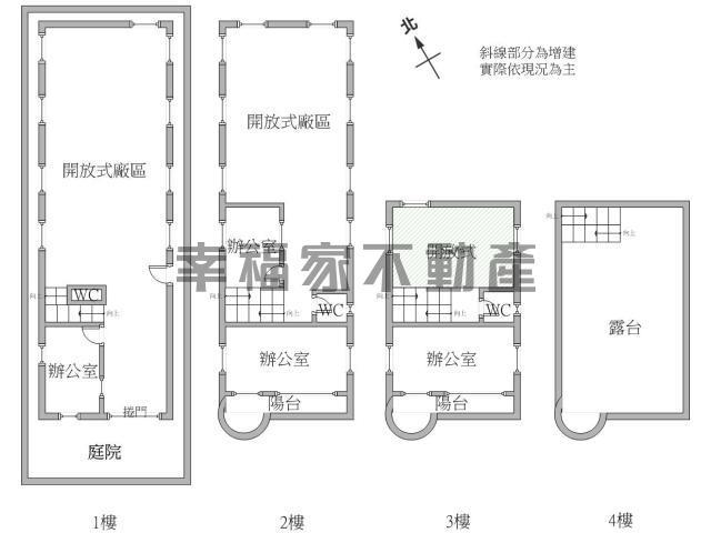
房屋類型廠房 總坪數 145.6 坪
格局 4房, 0廳, 2衛, 2陽台, 1廚房 屋齡 34年
每坪單價 36.54萬/坪 公設比
車位 座向 朝西南
無障礙環境 沒有 法拍屋 不是
建物所在樓層 共3樓 管理費
管委會 沒有 中庭 沒有
電梯 沒有 是否為凶宅 不是
300公尺內嫌惡設施 面前道路 12米
面寬 10米 縱深
邊間 不是 房屋銷售來源 不動產經紀人/專業仲介
房屋特色
【127大地坪】【12米路面】

【廠辦住合一】【和順工業區】

台南市安南區【開安三街】和順|乙工廠辦住合一

●委託價格:5320萬

●登記地坪:127.1坪

●登記建坪:145.6坪

●建物樓層:共3樓

●室內格局:4房0廳2衛

●建築完成日:80年4月(約35年)

●土地格局:面寬約10米,臨路約12米



◎合法廠房,鄰近台江大道,國道8號,交通便捷

◎和順工業區,近果菜市場,歷史博物館,安和商圈

◎RC結構,現況電力8馬力,廠房.辦公.住家合一

◎安南廠房,稀有釋出,把握機會,錯過可惜



!LINE好友人數已滿,歡迎直接來電詢問!

★合法經紀業者,通過國家考試及格特約代書★

★給您最誠信,經營,專業的服務,價錢實在★

★幸福聯賣,成交快速,保障交易,安全買賣★

★履約保證,詳細產權現況說明書,讓您放心★

★歡迎來電買屋.委託賣屋.土地.農地.工業地.廠房★



買屋搜尋【台南農地出售】【阿妙房屋0910-787-268】

台南房屋,台南不動產,台南電梯大樓,台南大樓,台南電梯華廈,台南公寓,台南廠房,

台南賣屋,台南透天,台南店面,台南別墅,​台南透天店面,台南透天別墅,台南買屋,

台南租屋,台南土地買賣,台南農地,台南建地,台南廠房,台南工業用地,高雄房屋,

高雄不動產,高雄電梯大樓,高雄大樓,高雄電梯華廈,高雄公寓,高雄房屋,高雄廠房,

高雄賣屋,高雄透天,高雄店面,高雄別墅,​高雄透天店面,高雄透天別墅,高雄買屋,

高雄租屋,高雄土地買賣,高雄農地,高雄建地,高雄廠房,高雄工業用地,高雄工業地

鴻運富不動產開發有限公司幸福家不動產安南店營業員證號(93)登字第040059號

*以上資料僅供參考,如有因誤繕,誤寫等記載錯誤事由,一律以謄本登記為準。

*上架資料僅於委託銷售契約期間內有效。若因契約期滿,

成交等情形而生無法銷售等事由者,請務必與承辦人員再次確認。

坪數說明
建物登記總坪數 145.6 土地登記總坪數 127.1
主建物坪數 停車位坪數
附屬建物坪數 公共設施坪數
增建坪數 地下室坪數
周邊環境
生活機能 鄰近交通
鄰近地標 公園綠地
鄰近學區 捷運站
房屋聯絡人資訊
聯絡人姓名 顏仟妙
(煩請告知聯絡人,您是在House-Info房屋網看到這則廣告,真摯感恩您的幫忙)
手機
0910-787-268
電子信箱
Skype通話 Line加入好友
所屬公司名稱 鴻運富不動產開發有限公司
公司電話 0910-787-268 公司傳真
公司地址 台南市安南區北安路二段147號
網 址 http://www.旺家買賣房屋資訊.tw
贊助商廣告
台南安南廠房-1
台南安南廠房-1
台南安南廠房-2
台南安南廠房-2
台南安南廠房-3
台南安南廠房-3
台南安南廠房-4
台南安南廠房-4
台南安南廠房-5
台南安南廠房-5
台南安南廠房-6
台南安南廠房-6
台南安南廠房-7
台南安南廠房-7
台南安南廠房-8
台南安南廠房-8
台南安南廠房-9
台南安南廠房-9
台南安南廠房-10
台南安南廠房-10
台南安南廠房-11
台南安南廠房-11
台南安南廠房-12
台南安南廠房-12
台南安南廠房-13
台南安南廠房-13
台南安南廠房-14
台南安南廠房-14
台南安南廠房-15
台南安南廠房-15
觀看地圖

安南區廠房-台南市安南區開安三街-廠房

物件留言
請注意,如果您詢問的內容與物件不相符合或是廣告,經過審核,系統將會直接刪除您的發問內容
等待圖示
檢舉物件不實
等待圖示
黃金曝光
  • 寮子?

    黃金曝光
    廠房_廠辦_一樓
    50.744坪
    2980萬
  • 中山北路

    黃金曝光
    廠房_廠辦_倉庫
    956.1坪
    1億9000萬
相似物件
www.house-info.idv.tw房屋網免責聲明:本系統為租用式開放房屋買賣網站建置平台,僅提供會員查詢-安南區廠房-等房屋資訊參考,並不涉入任何諮詢、交易。 物件(服務)聯絡人公佈的資訊、文字、照片、圖形、產權、廣告內容、或其他資料若有不實或違法情事,或與客戶聯絡交易過程中若衍生民事或刑事等法律問題,皆與本房屋網站無關,所有商標、文章、名稱等版權,皆歸屬原著作者所有! ●電話:07-7963288