台南市東區透天
07-7963288
客服電話
申請房仲網站
首頁
房屋租售
土地租售
法拍屋資訊
廠房租售
房仲
大樓社區
委託買賣
關鍵字
現在位置:
首頁
›
房屋租售
›
台南透天
›
東區透天
›
台南市東區透天-台南市東區崇善11街
最後更新:1天前
檢舉物件不實
│
列印
│
物件留言
台南市東區透天
台南市東區透天
房屋基本資料
案名
崇善商圈-孝親裝潢透天車庫,售1980萬
案號
4002
地址
台南市東區
崇善11街
銷售狀態
帶看中
售價
售1980萬
房屋類型
透天_別墅
總登記坪數
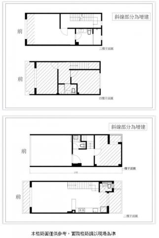
33.39 坪
格局
4房, 2廳, 4衛, 4陽台, 1廚房
屋齡
46年
每坪單價
59.3萬/坪
公設比
車位
室內車庫
座向
無障礙環境
沒有
法拍屋
不是
建物所在樓層
共4樓
管理費
管委會
沒有
中庭
沒有
電梯
沒有
是否為凶宅
不是
300公尺內嫌惡設施
面前道路
8米路
面寬
縱深
邊間
不是
房屋銷售來源
不動產經紀人/專業仲介
房屋特色
近崇善路-8米路
1.整棟重新整理+增建,實際使用
2.空間大幅提升,格局方正,動線佳
3.一樓孝親房+有天井+二樓延伸露台
4.屋內保有自然光,乾爽不潮溼
5.仁和商圈,生活機能完整,採買便利
6.崇善商圈近學區,外食方便,診所林立,生活便利滿分
坪數說明
建物登記總坪數
33.39
土地登記總坪數
17.84
主建物坪數
停車位坪數
附屬建物坪數
公共設施坪數
增建坪數
地下室坪數
周邊環境
生活機能
鄰近交通
鄰近地標
公園綠地
鄰近學區
德高國小,崇明國中
捷運站
房屋聯絡人資訊
聯絡人姓名
陳盈秀
(煩請告知聯絡人,您是在House-Info房屋網看到這則廣告,真摯感恩您的幫忙)
手機
0928-010-990
電子信箱
Skype通話
Line加入好友
所屬公司名稱
誠昱不動產企業社(住商成大東興店)
公司電話
0928010990 (LINE)
公司傳真
公司地址
台南市永康區小北路30號
網 址
http://www.台南秀秀房仲網.tw
贊助商廣告
台南透天-1
台南透天-2
台南透天-3
台南透天-4
台南透天-5
台南透天-6
台南透天-7
台南透天-8
台南透天-9
台南透天-10
台南透天-11
台南透天-12
台南透天-13
台南透天-14
台南市東區透天-台南市東區崇善11街-透天
物件留言
請注意,如果您詢問的內容與物件不相符合或是廣告,經過審核,系統將會直接刪除您的發問內容
檢舉物件不實
黃金曝光
東橋七路
透天_別墅 / 5房
56.752坪
2180萬
東門路三段
透天_別墅 / 4房
55.98坪
1988萬
永春街
透天_別墅 / 6房
73.762坪
2580萬
南台街
透天_套房_電梯學宿 / 26房
51.244坪
2880萬
相似物件
西拉雅大道521巷
透天 / 4房
57.84坪
售1980萬
自強路
透天_店面 / 4房
61.589坪
售1750萬
健康路三段
透天_別墅
89.77坪
售1680萬
頂美三街
透天_別墅 / 4房
60.99坪
售1988萬
www.house-info.idv.tw房屋網
免責聲明:本系統為租用式開放房屋買賣網站建置平台,僅提供會員查詢-
台南市東區透天
-等房屋資訊參考,並不涉入任何諮詢、交易。 物件(服務)聯絡人公佈的資訊、文字、照片、圖形、產權、廣告內容、或其他資料若有不實或違法情事,或與客戶聯絡交易過程中若衍生民事或刑事等法律問題,皆與本房屋網站無關,所有商標、文章、名稱等版權,皆歸屬原著作者所有! ●電話:07-7963288
台南華廈
│
台南電梯大廈
│
台南電梯大樓
│
台南大樓
│
台南大廈
│
台南電梯華廈
│
台南透天別墅
│
台南透天厝
│
台南公寓
│
台南店面
│
台南套房
│
台南預售屋
│
台南豪宅
│
台南樓中樓
│
台南農舍
│
台南雅房
│
台南國宅
│
台南辦公大樓
│
台南透天
│
台南中古屋
│
台南新成屋
│
台南新房屋
│
台南新房子
│
台南別墅
│
台南電梯別墅
│
台南別墅建案
│
台南透天店面
│
台南成屋
│
台南套房建案
│
台南屋主自售
│
台南透天建案
│
台南房屋
│
台南房子
│
台南新建案
│
台南電梯透天
│
台南大樓建案
│
台南建案
│
台南房地產
│
台南不動產
請注意:此案件已下架
資料處理中,請稍後...