台南佳里區透天

最後更新:2天前
房屋基本資料
案名 B1佳里區番子寮朝北大地坪孝親房車墅 台南買屋專家 案號
地址 台南市佳里區番子寮
銷售狀態 帶看中 售價
售1388萬
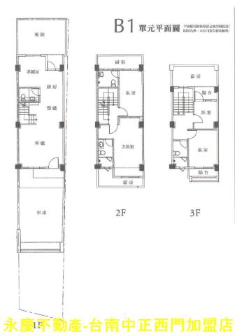
房屋類型透天 總登記坪數 43.176 坪
格局 5房, 2廳, 4衛 屋齡 3年
每坪單價 32.15萬/坪 公設比
車位 室內車庫 座向 朝北
無障礙環境 法拍屋 不是
建物所在樓層 共3樓 管理費
管委會 中庭
電梯 未知 是否為凶宅
300公尺內嫌惡設施 面前道路 8
面寬 縱深
邊間 房屋銷售來源 不動產經紀人/專業仲介
房屋特色

(1)基地地質改良樁加筏式基礎雙重抗震設計,再加全棟防水處理。



(2)前落地窗是5+5mm膠合玻璃隔音氣密再升級,保有家的寧靜。



(3)廚房採用櫻花廚具經典三機,衛浴為日系TOTO極簡衛浴。



(4)Kwikset四合一智慧電子鎖,指紋、密碼、一卡通皆能整合。



(5)近佳里市區,離塵不離城,生活機能優異,大地坪,好停車。

坪數說明
建物登記總坪數 43.176 土地登記總坪數 48.064
主建物坪數 40.438 停車位坪數
附屬建物坪數 2.738 公共設施坪數
增建坪數 地下室坪數
周邊環境
生活機能 鄰近交通
鄰近地標 公園綠地
鄰近學區 延平國小,佳里國中 捷運站
房屋聯絡人資訊
聯絡人姓名 永慶不動產中正西門店
(煩請告知聯絡人,您是在House-Info房屋網看到這則廣告,真摯感恩您的幫忙)
手機
0911-559351
電子信箱
Skype通話 Line加入好友
所屬公司名稱 永慶不動產中正西門加盟店
公司電話 0911-559351 06-2212828 公司傳真 06-2215626
公司地址 台南市中西區中正路45號
網 址 http://永慶不動產-中正西門店.house-info.com.tw
贊助商廣告
台南佳里透天-1
台南佳里透天-1
台南佳里透天-2
台南佳里透天-2
台南佳里透天-3
台南佳里透天-3
台南佳里透天-4
台南佳里透天-4
台南佳里透天-5
台南佳里透天-5
台南佳里透天-6
台南佳里透天-6
台南佳里透天-7
台南佳里透天-7
台南佳里透天-8
台南佳里透天-8
台南佳里透天-9
台南佳里透天-9
台南佳里透天-10
台南佳里透天-10
台南佳里透天-11
台南佳里透天-11
台南佳里透天-12
台南佳里透天-12
台南佳里透天-13
台南佳里透天-13
台南佳里透天-14
台南佳里透天-14

台南佳里區透天-台南市佳里區番子寮-透天

物件留言
請注意,如果您詢問的內容與物件不相符合或是廣告,經過審核,系統將會直接刪除您的發問內容
等待圖示
檢舉物件不實
等待圖示
黃金曝光
相似物件
  • 港口

    透天_別墅 / 5房
    50.58坪
    售1688萬
  • 賢北街

    透天 / 5房
    60.4坪
    售1488萬
  • 檨仔林

    透天_別墅 / 3房
    45.98坪
    售1188萬
  • 永南一街

    透天_別墅 / 6房
    49.373坪
    售1688萬
www.house-info.idv.tw房屋網免責聲明:本系統為租用式開放房屋買賣網站建置平台,僅提供會員查詢-台南佳里區透天-等房屋資訊參考,並不涉入任何諮詢、交易。 物件(服務)聯絡人公佈的資訊、文字、照片、圖形、產權、廣告內容、或其他資料若有不實或違法情事,或與客戶聯絡交易過程中若衍生民事或刑事等法律問題,皆與本房屋網站無關,所有商標、文章、名稱等版權,皆歸屬原著作者所有! ●電話:07-7963288