台北南港公寓法拍
07-7963288
客服電話
申請房仲網站
首頁
房屋租售
土地租售
法拍屋資訊
廠房租售
房仲
大樓社區
委託買賣
關鍵字
現在位置:
首頁
›
法拍屋資訊
›
台北法拍公寓
›
南港法拍公寓
›
台北南港公寓法拍-台北市南港區東新街8-5號2樓
最後更新:4小時內
檢舉物件不實
│
列印
│
物件留言
|
觀看地圖
台北南港公寓法拍
台北南港公寓法拍
房屋基本資料
案名
南港區 東新街 公寓二樓 松山車站 南港運動中心
案號
114勇85762 115/04/09(四) 14:30
地址
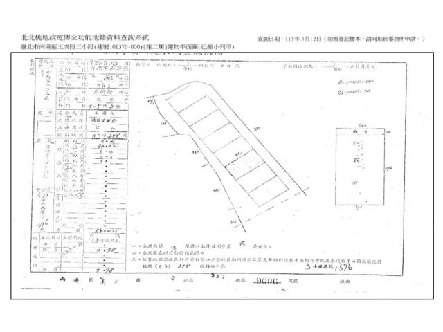
台北市南港區
東新街8-5號2樓
銷售狀態
待標中
售價
售1487萬
房屋類型
法拍公寓
總登記坪數
27.52 坪
格局
0房
屋齡
46年
每坪單價
54.03萬/坪
公設比
車位
沒有車位
座向
無障礙環境
沒有
法拍屋
本物件是法拍屋
拍次 : 第一拍 部份點交
開標日期 : 2026/04/09(四) 14:30
建物所在樓層
2樓/共5樓
管理費
管委會
沒有
中庭
沒有
電梯
沒有
是否為凶宅
不是
300公尺內嫌惡設施
面前道路
面寬
縱深
邊間
房屋銷售來源
不動產經紀人/專業仲介
房屋特色
【法院筆錄內容】
1‧1376建號建物拍定後點交。351地號土地拍賣不動產應有部分,拍定後不點交。
2‧114年9月22日現場查封時,1376建號建物,債務人在場稱由其本人及家屬作為倉庫使用。惟現在實際情形如何,仍請應買人自行查明注意。
3‧投標人應自行查明債務人有無積欠管理費,並注意拍定後民法第826條之1第3項規定之適用問題。
《拍賣抵押物》
【保證金】
297.4萬
【拍賣履歴】
一拍2026/04/09底標價格1487萬
二拍底標價格1189.6萬
三拍底標價格951.7萬
四拍底標價格761.4萬
【焦點法拍履歴】
👩🏻⚖️從業二十年以上經驗|競競業業|正派經營
🎯投標準備⇥法拍流程說明|標單填寫|案件現場勘查有無特殊情事|成本評估分析
💰銀行貸款⇥法拍物件估價|投標人財力評估|銀行代墊款協助辦理|最高八成
🏡拍定得標⇥強制執行書狀、履勘陳報書狀往返|債務人搬遷協商|遺留物造冊查估
🎁委託代標⇥免費|委託代標未得標⇥免費
🏢鑫創資產管理有限公司
顏麗杏0911-965339營業員證號:(101)登字第212862號
連真甄0909-031993營業員證號:(101)登字第192002號
更多物件☞焦點法拍
經紀人李彥槿:109北市經證字第02110號
坪數說明
建物登記總坪數
27.52
土地登記總坪數
主建物坪數
25.11
停車位坪數
附屬建物坪數
2.41
公共設施坪數
增建坪數
地下室坪數
周邊環境
生活機能
鄰近交通
鄰近地標
公園綠地
鄰近學區
捷運站
松山
房屋聯絡人資訊
聯絡人姓名
小顏
(煩請告知聯絡人,您是在House-Info房屋網看到這則廣告,真摯感恩您的幫忙)
手機
0911-965-339
電子信箱
Skype通話
Line加入好友
所屬公司名稱
鑫創資產管理有限公司
公司電話
公司傳真
公司地址
新北市新莊區中環路二段423號一樓
網 址
http://www.1314home.tw
贊助商廣告
台北南港公寓法拍-1
台北南港公寓法拍-2
台北南港公寓法拍-3
台北南港公寓法拍-4
台北南港公寓法拍-5
台北南港公寓法拍-6
台北南港公寓法拍-7
台北南港公寓法拍-8
觀看地圖
到Google查看地圖
到Google查看街景
台北南港公寓法拍-台北市南港區東新街8-5號2樓-公寓
物件留言
請注意,如果您詢問的內容與物件不相符合或是廣告,經過審核,系統將會直接刪除您的發問內容
檢舉物件不實
黃金曝光
桂林路224巷18
公寓_萬華分局公寓 / 3房
23.32坪
590萬
牯嶺街66號1樓<
公寓_店面_一樓
47.58坪
3424萬
寶清街30巷22號
公寓_一樓 / 3房
29.85坪
2191萬
"法拍屋"永吉路2
公寓_一樓_永春市場商圈
31.35坪
2869萬3000元
相似物件
吉林路299巷18
公寓_三樓附增建
21.33坪
售1611萬
重慶北路四段220
公寓
22.19坪
售1275萬
重慶北路四段220
公寓
23.36坪
售1275萬2000元
奇岩路201巷11
公寓_一樓
35.66坪
售1327萬
www.house-info.idv.tw房屋網
免責聲明:本系統為租用式開放房屋買賣網站建置平台,僅提供會員查詢-
台北南港公寓法拍
-等房屋資訊參考,並不涉入任何諮詢、交易。 物件(服務)聯絡人公佈的資訊、文字、照片、圖形、產權、廣告內容、或其他資料若有不實或違法情事,或與客戶聯絡交易過程中若衍生民事或刑事等法律問題,皆與本房屋網站無關,所有商標、文章、名稱等版權,皆歸屬原著作者所有! ●電話:07-7963288
南港法拍華廈
│
南港法拍電梯大廈
│
南港法拍電梯大樓
│
南港法拍大樓
│
南港法拍大廈
│
南港法拍電梯華廈
│
南港法拍透天別墅
│
南港法拍透天厝
│
南港法拍公寓
│
南港法拍店面
│
南港法拍套房
│
南港法拍廠房
│
南港法拍辦公室
│
南港法拍豪宅
│
南港法拍樓中樓
│
南港法拍農舍
│
南港法拍廠辦
│
南港法拍雅房
│
南港法拍倉庫
│
南港法拍工業廠房
│
南港法拍透天
│
南港法拍中古屋
│
南港法拍別墅
│
南港法拍電梯別墅
│
南港法拍透天店面
│
南港法拍屋
│
南港法拍房屋
│
南港法拍房子
請注意:此案件已下架
資料處理中,請稍後...