佳里華廈

最後更新:10小時內
房屋基本資料
案名 台南市佳里區~電梯華廈~年年如意精緻三房平車 案號 28443
地址 台南市佳里區子龍三街 社區/大樓佳里-年年如意(舜勳建設)
銷售狀態 帶看中 售價
售880萬
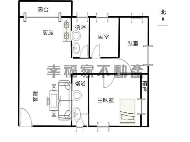
房屋類型華廈 總登記坪數 33.11 坪
格局 3房, 2廳, 2衛, 1陽台, 1廚房 屋齡 3年
每坪單價 26.58萬/坪 公設比
車位 一樓平面車位 座向 朝西南
無障礙環境 沒有 法拍屋 不是
建物所在樓層 4樓/共5樓 管理費 900元/月
管委會 中庭 沒有
電梯 是否為凶宅 不是
300公尺內嫌惡設施 面前道路 6米
面寬 縱深
邊間 房屋銷售來源 不動產經紀人/專業仲介
房屋特色
【輕屋齡】【三房+平車】

【近麻豆交流道】【贈家具家電】

台南市佳里區【子龍三街】年年如意精緻三房平車

●委託價格:880萬

●建物面積:33.11坪

●室內面積:23.49坪

●建物樓層:4樓/共5樓

●室內格局:3房2廳2衛

●建築完工日:110年11月(約4年)



◎附贈冷氣、床組、熱水器,固定物不拆

◎簡約輕裝潢,前後採光,自住.出租兩相宜

◎近麻佳路,麻豆交流道,交通四通八達

◎佳里華廈,地點絕佳,把握機會,錯過可惜



!LINE好友人數已滿,歡迎直接來電詢問!

★合法經紀業者,通過國家考試及格特約代書★

★給您最誠信,經營,專業的服務,價錢實在★

★幸福聯賣,成交快速,保障交易,安全買賣★

★履約保證,詳細產權現況說明書,讓您放心★

★歡迎來電買屋.委託賣屋.土地.農地.工業地.廠房★



買屋搜尋【台南農地出售】【阿妙房屋0910-787-268】

台南房屋,台南不動產,台南電梯大樓,台南大樓,台南電梯華廈,台南公寓,台南廠房,

台南賣屋,台南透天,台南店面,台南別墅,​台南透天店面,台南透天別墅,台南買屋,

台南租屋,台南土地買賣,台南農地,台南建地,台南廠房,台南工業用地,高雄房屋,

高雄不動產,高雄電梯大樓,高雄大樓,高雄電梯華廈,高雄公寓,高雄房屋,高雄廠房,

高雄賣屋,高雄透天,高雄店面,高雄別墅,​高雄透天店面,高雄透天別墅,高雄買屋,

高雄租屋,高雄土地買賣,高雄農地,高雄建地,高雄廠房,高雄工業用地,高雄工業地

鴻運富不動產開發有限公司幸福家不動產安南店營業員證號(93)登字第040059號

*以上資料僅供參考,如有因誤繕,誤寫等記載錯誤事由,一律以謄本登記為準。

*上架資料僅於委託銷售契約期間內有效。若因契約期滿,

成交等情形而生無法銷售等事由者,請務必與承辦人員再次確認。



坪數說明
建物登記總坪數 土地登記總坪數
主建物坪數 停車位坪數
附屬建物坪數 公共設施坪數
增建坪數 地下室坪數
周邊環境
生活機能 鄰近交通
鄰近地標 公園綠地
鄰近學區 捷運站
房屋聯絡人資訊
聯絡人姓名 顏仟妙
(煩請告知聯絡人,您是在House-Info房屋網看到這則廣告,真摯感恩您的幫忙)
手機
0910-787-268
電子信箱
Skype通話 Line加入好友
所屬公司名稱 鴻運富不動產開發有限公司
公司電話 0910-787-268 公司傳真
公司地址 台南市安南區北安路二段147號
網 址 http://www.旺家買賣房屋資訊.tw
贊助商廣告
買房,買屋,買房子
佳里華廈-1
佳里華廈-1
佳里華廈-2
佳里華廈-2
佳里華廈-3
佳里華廈-3
佳里華廈-4
佳里華廈-4
佳里華廈-5
佳里華廈-5
佳里華廈-6
佳里華廈-6
佳里華廈-7
佳里華廈-7
佳里華廈-8
佳里華廈-8
佳里華廈-9
佳里華廈-9
佳里華廈-10
佳里華廈-10
佳里華廈-11
佳里華廈-11
佳里華廈-12
佳里華廈-12
佳里華廈-13
佳里華廈-13
佳里華廈-14
佳里華廈-14
佳里華廈-15
佳里華廈-15
觀看地圖

佳里華廈-台南市佳里區子龍三街-華廈

物件留言
請注意,如果您詢問的內容與物件不相符合或是廣告,經過審核,系統將會直接刪除您的發問內容
等待圖示
檢舉物件不實
等待圖示
黃金曝光
相似物件
www.house-info.idv.tw房屋網免責聲明:本系統為租用式開放房屋買賣網站建置平台,僅提供會員查詢-佳里華廈-等房屋資訊參考,並不涉入任何諮詢、交易。 物件(服務)聯絡人公佈的資訊、文字、照片、圖形、產權、廣告內容、或其他資料若有不實或違法情事,或與客戶聯絡交易過程中若衍生民事或刑事等法律問題,皆與本房屋網站無關,所有商標、文章、名稱等版權,皆歸屬原著作者所有! ●電話:07-7963288